Page 8 - WilliamsMidway WPC Schematics 16-9834.2

SEO Version

r~------~--~-~-~~~-·~
l,.= '''- --- -- ----+- -t+--'·I-1'
Q
~;~K
1--+-_"""<1
011 ~ ?
..
--.---- --- ---~-------,
,
• <-
"
,
.,..1
",,0,-
"."
1"'-
-4t''-N-2":;,"".O'' --_~
.••.•• __
-__ l !'
~ ~ ~
'101
~~g~
L..-_---'
T
,
.
3
,
.
. ----
.. - . "."-"
...
-"~'_t~."-"----.~.-.----"-.----.-"-.-
..-"-----.-~------.--------------"--"-------~---------~---"--"-"--"-----"---~--"---"-"- -+_--"------"----"~--------"-"-"-"-"-.-"-"-"--.-"-"-.---"-"-.-""--"-"-"-"--"-"-"--~---'--~"---.
-- ---.--
.o,
----~-------+~--------~-----
r-
~E i
,E I'Ui ..iI:~]~
j! ~
.J~Q. ..':~-I
1
1.<lL:5'307... .
.I!I .....
OI'l'N 120
I
,I
GNO
111114!0
I
Vm..fA.'Ii iE IfIEI" I!.RE"IoICoE
I ,"
v
7"'.Ii1S'l'oi
1'..j IL.50i il'
:.
. J S- Ii :C I~ 7
! Io ? ~:! - - l ' . 4i f1! : ! ! ~ ~ '
" -! i l l! . ~ 7
" '- l ' t~ ' IHI
I
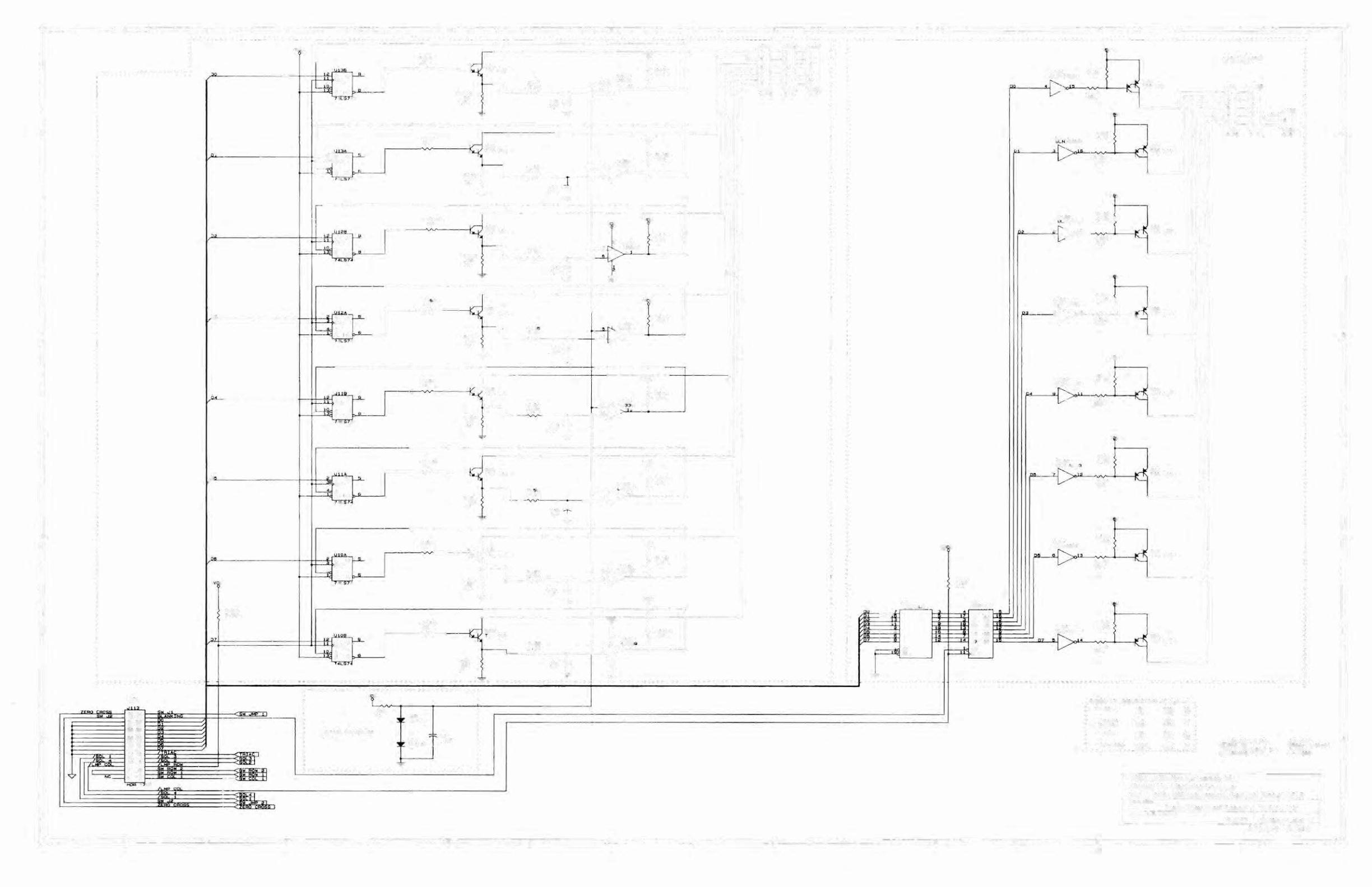
WlillarT)s Electronics Gam~s, Inc.
M i
oway
M
anu
la Glurlng
Compa ny
'34,01 North Ca Iifornia AVGn uc, Ch icago
o. ~ r .. ; ; E ~
-
I
Power Driver Board (lamp')
Illinois 506.:.:18"-__ "'
S!1ee, 2
013
16,·9057 R,,ision level 6
P---. --·-·
• ~
~
-----<;Di3:
1;.1wI3.3i11
.'I:i._r
j:lI •.••
l
!;lNC
CIIIj'ol
~i i!
,
,
,
li..N -~ .g~
.I&V
~ IN
1(11
I
1..
~
~1iIifQ~
~ltl_ _
jI ~ _ 1